ANATOLIA COLLEGE

Thessaloniki, Greece
University building

ANATOLIA COLLEGE

Thessaloniki, Greece
University building

The new American College Thessaloniki building is a key addition to the Anatolia College campus in Thessaloniki. Commissioned through an invited competition, the project marks the beginning of a new chapter for the American College of Thessaloniki, aligning with the institution’s broader master plan and long-term academic vision.

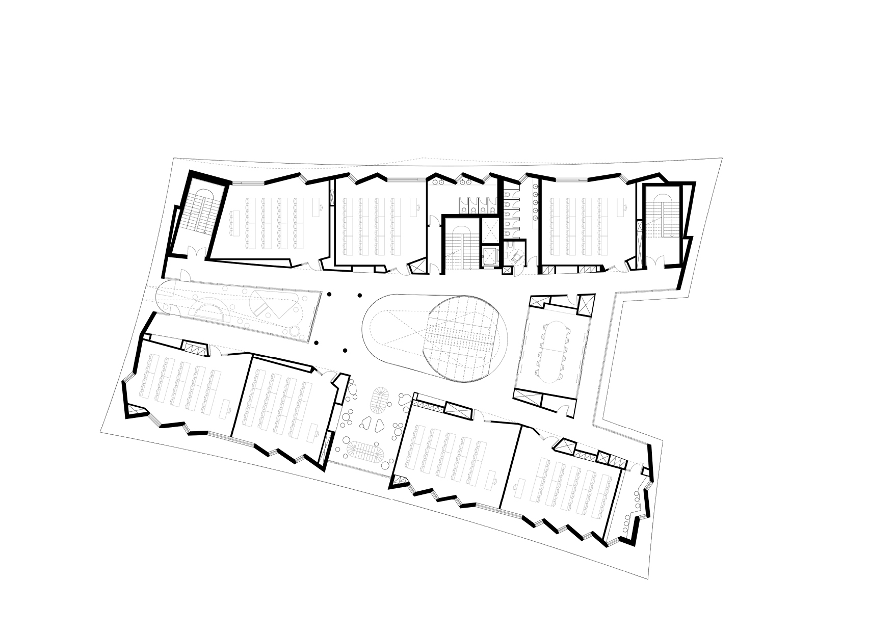
The building supports contemporary modes of learning, blending formal and informal spaces to encourage collaboration, flexibility, and connection. Adaptable classrooms, quiet study areas, media spaces, and multifunctional amphitheaters offer a diverse range of learning environments. At the heart of the interior, a sculptural staircase with integrated bleacher seating becomes a gathering point for interaction and exchange.

The building’s massing creates a gentle curve at ground level, opening toward the central green quad and drawing people into the interior. Landscape pockets and large openings blur the boundary between inside and out, integrating the architecture with the natural surroundings. Outdoor classrooms, shaded terraces, and an open-air amphitheater expand the learning experience beyond the building’s walls.

A rotating system of vertical panels wraps the facade, filtering sunlight while creating a dynamic visual effect. This strategy enhances daylight, reduces glare and heat gain, and frames views across the campus. At night, the building becomes a softly glowing landmark.

Materiality reinforces the connection to context, using textured plaster and ceramic brick in earthy tones that echo the campus’s architectural language. Sustainability is embedded throughout, from passive cooling and natural ventilation to energy-efficient systems and greywater reuse.

The ACT building is designed to serve as both an academic space and a social hub—an open, welcoming structure that supports the evolving needs of students and educators while reinforcing the identity and future of the Anatolia College campus.

LOADING
LOADING
LOADING
LOADING
LOADING
LOADING
LOADING
LOADING
LOADING
Site plan
LOADING
Ground floor plan
LOADING
First floor plan
LOADING
Second floor plan
LOADING
Reconfigurable amphitheater